Skip to content ↓

In the World: New water-filter factory in Ghana

After years of development, production of ceramic-pot water filters should soar with opening of new facility.
Ghanasco Dugout, Tamale, Ghana — a typical water-collection area for the villages in the region
Caption:
Ghanasco Dugout, Tamale, Ghana — a typical water-collection area for the villages in the region
Credits:
Photo: Tamar Losleben
The Ghanasco Dugout, like most water-collection areas, is  used by livestock as well as people.
Caption:
The Ghanasco Dugout, like most water-collection areas, is used by livestock as well as people.
Credits:
Photo: Tamar Losleben
New factory for producing water filters, shown under construction last year, was completed this March.
Caption:
New factory for producing water filters, shown under construction last year, was completed this March.
Credits:
Photo: Claudia Espinoza
Villagers are shown how to use and maintain the filter systems, which include a porous clay pot inside a plastic bucket.
Caption:
Villagers are shown how to use and maintain the filter systems, which include a porous clay pot inside a plastic bucket.
Workers at the new factory pose with members of the MIT team. MIT senior lecturer Susan Murcott, at right, set up the nonprofit company Pure Home Water to produce the filters.
Caption:
Workers at the new factory pose with members of the MIT team. MIT senior lecturer Susan Murcott, at right, set up the nonprofit company Pure Home Water to produce the filters.
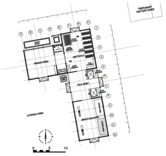
Drawing of the completed factory, which will be producing bricks as well as water filters.
Caption:
Drawing of the completed factory, which will be producing bricks as well as water filters.
The factory under construction last summer. At center is the kiln, which will be used to bake both the ceramic pots and the bricks.
Caption:
The factory under construction last summer. At center is the kiln, which will be used to bake both the ceramic pots and the bricks.
Credits:
Photo: C. DeVries
The nearly completed factory, in March of this year.
Caption:
The nearly completed factory, in March of this year.
The first step in the manufacturing is to powder the dried clay, using mortars and pestles.
Caption:
The first step in the manufacturing is to powder the dried clay, using mortars and pestles.
Credits:
Photo: Leah Nation
After molding, the clay pots are dried in the sun before being fired in the kiln.
Caption:
After molding, the clay pots are dried in the sun before being fired in the kiln.
Credits:
Photo: Travis Watters

In northern Ghana, that nation’s poorest and most rural region, most families get their drinking water from rivers or large, shallow ponds. The water in these bodies, which are also used by livestock, is clouded with sediment and teeming with bacteria and parasites.

MIT Senior Lecturer in Civil and Environmental Engineering Susan Murcott ’90, SM ’92 has spent years trying to combat the widespread disease caused by poor water quality in many developing countries. This spring that work took a major leap forward with the long-awaited completion of a Ghanaian factory to produce thousands of inexpensive water-filtration systems.

“A billion people lack safe water” around the world, Murcott says. But when she began teaching at MIT in the 1990s, there was little opportunity for students here — or anywhere in the United States — to work on the problems of water and sanitation in developing countries. “In my undergraduate and graduate years here, it wasn’t mentioned,” she recalls. Since then, scores of MIT students have participated in projects to improve water and sanitation in various developing countries. A number of Murcott’s students have won prizes for their work, including three teams who won a total of $22,500 in this year’s IDEAS Competition and Global Challenge.  

The new factory will churn out filters that use a porous ceramic pot to filter sediment and bacteria out of the water. The flowerpot-like filter is set into the top of a plastic barrel, which is fitted with a spigot at the bottom to dispense the water. Murcott co-founded a nonprofit company in 2005, called Pure Home Water, to start selling the filters, which were produced under contract in Accra, Ghana’s capital. So far, more than 16,000 have been sold, providing clean water to an estimated 100,000 people.

After serious problems with quality control and with breakage during the rough 12-hour truck ride to deliver the filters to where they were needed, Murcott decided to set up the factory in northern Ghana, the area where the need was greatest. After more than a year of work, aided by Murcott and more than a dozen MIT students, the factory was completed in March, and is now beginning to churn out filters at a rate of 200 per month, with a goal of 350 units a month by the end of this year. The factory will also make bricks, using the same clay and kilns, which will be sold to help subsidize the filter production. The filter systems will be sold for about $10 each.

In The World explores the ways members of the MIT community are developing technology — from the appropriately simple to the cutting edge — to help meet the needs of communities around the planet, especially those in the developing world. If you have suggestions for future columns, please e-mail newsoffice@mit.edu.

Related Links

Related Topics

More MIT News

Brian Hanna headshot

Faces of MIT: Brian Hanna

MIT Venture Mentoring Service Operations Manager Brian Hanna matches entrepreneurs with industry professionals who help take their ventures to the next level through personalized mentorship and expert advice.

Read full story